
「人造物體離開地球大氣層,再從外太空重新進入大氣層的運動」——即此展覽reentry的概念。而作品《//Gateway》像是正在進入大氣層的過渡過程。作品既不在展覽之外也不完全立身於展覽內,更像於另一種曖昧時空,是外到內的緩衝階段。
程式語言中「//」符號後面的訊息會被編譯器忽略直到這行結束。作品名稱《//Gateway》暗示在展覽中相對其他五件作品獨立的展示,更多的「自願被隱藏」或是「註解」。
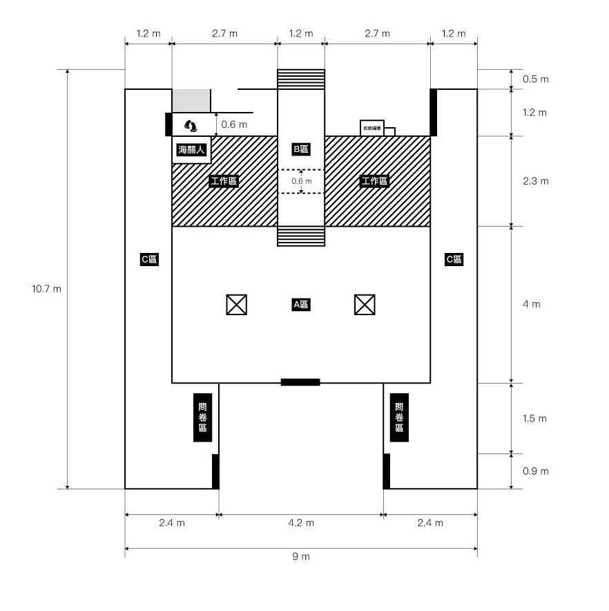
在入場前觀眾們的資料就已被寫入資料庫,當他們進入空間一段時間後,姓名會被顯示前方窗口上,像是這個地方早已經認識觀眾,並將引導他們向前。「請問是ooo嗎?」、「身分已確認」、「請領取您的身分環」……這時下方抽屜被推開,拿起並戴上「身分環」後,一旁燈光亮起,觀眾進入通道。沿著鷹架所建構的走道從平面走至第二層樓,又往下進入展場內,身體的位移、高度差和其中時間的流逝,延伸觀眾的「過渡」。
此作品以鷹架為本體把這個空間塑造為有機生命體,中心上方不斷運轉的風扇是核心的心臟,前方的投影及聲音是意識,而窗口兩側的通道,是把人們傳送進去的傳輸帶。
我們稱前來的觀眾為「訪客」或是「傳播者」。
空間中影像及聲音的循環不斷對他們說:「因為你們的參與,我們將成為記憶,你們會記得這裡,所以這個空間得以存在。」到過這裡的「傳播者」把記憶傳遞給另一個人,然後會有「新的訪客」到來。不間斷的累積過後,這裡將變成一個集體的記憶。

創作過程
從一開始發想的時候,我們對於 展場出入口的位置有著非常多的想像,而且覺得這具有獨特性與挑戰性, 所以在初期時,就確定了作品的位置。
第一版
著重潛移默化中身分的轉化,觀者在毫無警戒下被迫進入了整個機制。並且藉由觀者在出口觀看雙面鏡時,兩側的人之能視範圍的不平等。
因此,在結構外型設計上,我們希望把展場大門外與場內空間隔絕,並打造一個空間,像過海關一樣的氛圍,在穿越前,先觀看一支影片,透過影片裡的角色,對「異地」產生一些想法;然後讓觀者穿過我們的作品,走下大樓梯進入「異地」後,營造一種與外界迥異、全新的觀感反應;在出口時透過出口處的雙面鏡回看等待區的人們與大螢幕上的影片(影片內的主角變為觀者自己),發現受到機制改變,而感受到的詭譎、詭異感;其實在觀者參與的過程中,我們正監視及記錄下他們的畫面。
而第一版以木材為主要的結構支柱,空間格局亦較為方正,通往展場的通道亦只有一條。


第二版/第二點一版…
對於論述作出了修改,這版著重於體驗過程之於整個展覽是一個過渡的角色,具有交界、曖昧的特質,身分轉換有明確的指向:轉換為傳播者,並且藉由傳播者乘載空間、人事的存在以及記憶。
在第一版與第二版的結構外型上,經歷了許多問題的考驗,無論是實際層面的,或是與作品理念本身。如實際層面的人流問題,第一版的一條通道,可能會造成人流阻塞,令許多人在「等候區」等待。另外,木結構在造價上太高,我們對於預算控制上有一定難度;作品理念:如何才能營造過渡的感覺?如何在過程中,潛移默化地告訴觀者訊息等等。而當藝術作品與實質用途之間產生的拉扯,他們的比重該如何分配。因為此為面對大眾的出入口,所以有較多限制,導致在許多概念上都必需考量到這些要求,甚至有許多的未知性。當中的設計、取捨,更是別人無法理解的。
然而,在第二版因應論述理念的修改與實際問題的考量,在結構外型上將原本一條通道增至四條,希望能改善人流問題,而出口通道為兩條,在動線上亦作出了一定的更改。另外,改用鷹架為支柱,能在便利性上和預算問題上有一定的改善,也意外地造就出一種新的空間感,我們使用鷹架與透明材質的布料作結合,發展成我們想要的風格。可是在測試期間,面臨最大的問題是沒有一個能讓我們把空間搭起來的場地,因為這樣才能令我們得知實際的空間感,以及一切對於環境影響下的問題。
而在此版本中,有許多的元素亦因此被撤掉,原因是在過程中我們一直審視我們想說的東西,反覆思考這些元素能否與理念貼合,該怎麼運用才是最好的……因此,出口的雙面鏡在第二版中,被換為其他的呈現方式,但雙面鏡的元素我們還是想好好利用。所以在通道裡,我們設計了以雙面鏡為外觀的動力裝置,內裝有鏡頭,記錄觀者在通道行走的畫面。在等待區上,慢慢地往劇場感的氛圍發展,加入許多燈光裝置;影片內容上亦要「打掉重練」。
此外,在發想中,想到身分與我們作品的關係,所以有了穿戴裝置的誕生,而後來此改為系統創作組負責,變為公共性的裝置——身分環。

最終版
基於第二版的概念,強化傳播者的定位以及體驗過程、整體風格完整。
在中後期的時候,我們慢慢發現,各部分都能獨當一面,可是總覺得一體性不夠強列。然而,裝置的資訊又過於繁多,怕觀者無法一一消化。所以在概念與裝置、空間外觀上,還是作出了許多修改。另外,在中後期時,有兩次能搭建空間作測試的機會,所以在一些實際層面的考量上,我們在部件上也有不同的調整。
所以在最終版中,我們外觀以兩層鷹架為主結構,外層是半透明塑膠布,隔開裡外空間、營造獨立空間之餘,也不會覺得有壓迫感。而在等候區,我們新增了吊掛的「風扇裝置」以及一個圓形平台,平台為「演員」站立的地方,而演員手拿iPad供大眾填寫資料,配合燈光與大螢幕的畫面內容,塑造劇場感,在觀看與填寫間,理解我們想透露的訊息。也讓參與者,在此靜下心來,準備進入展場。
而在技術的調整,最終在觀者資訊的披露手法上,使用了在大螢幕上顯示他的Facebook頭像。在通道內,亦拿去裝置,改為將記錄影片以E-mail方式傳回給觀者,在E-mail裡亦披露了他們一切在展場內的資訊,如進場時間、離開時間,參與資訊等等。通道裡亦新增了燈條裝置,希望有一種流動、過渡的體驗感,並與身分環有所互動。
因此最終的完整過程是:先在等待區用手機或共用iPad填寫資料,在填寫過程中或完成後,觀看大螢幕的影片內容,等待叫號;當後台收到資料後進行與身分環配對,配對完成後,觀者往指定窗口作業、取得身分環,最後利用燈光提示,進入通道,繼而到平台往大樓梯進入展場。在出口時,歸還身分環,穿過出口通道,回到原本的世界。

photo by 許瑋庭
